Gents toilet detail file. Download cad drawing file | CADBULL
Description
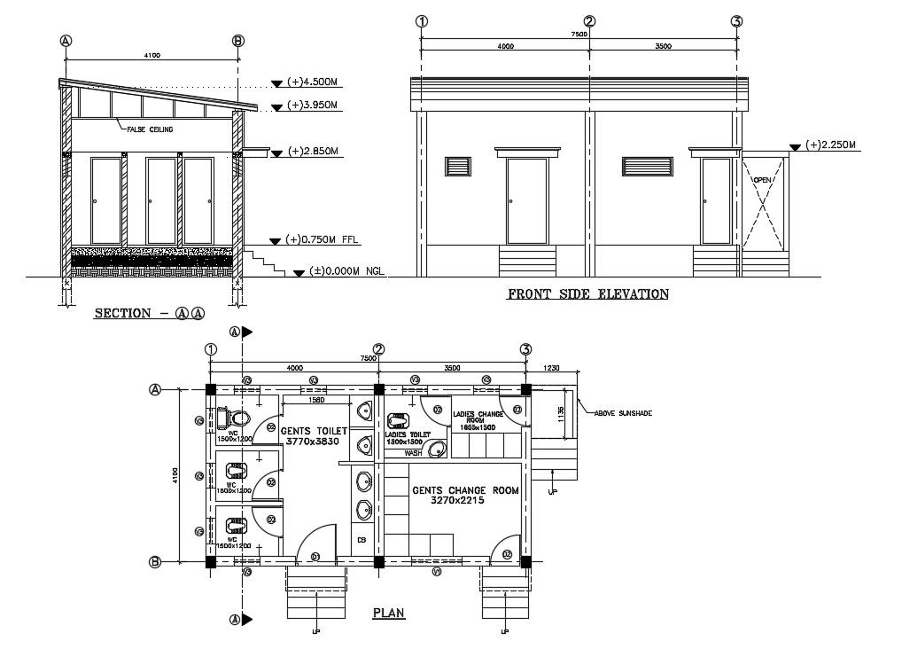
Gents Toilet detail drawing provided in this Autocad drawing file. this file consists of section detail and plans detail of the interior and exterior of the toilet with door window details and sanitary detail. moreover, dimensions, and area specification detail is given in it. this can be used by architects and engineers. Download this 2d AutoCAD drawing file.
Uploaded by:

